Neubau Kita Elsterstraße in Leipzig, Zentrum










Neubau Kita Elsterstraße in Leipzig, Zentrum
- Bauherr
- Leipziger Wohnbaugesellschaft mbH
- Kinderanzahl
- 102 (davon 30 Krippe)
- KG 200-700
- 1,83 Mio. €
- KG 300/400
- 1,38 Mio. €
- BGF
- 1.000 m²
- BRI
- 3.650 m²
- Leistung
- Lph 02-09
- Fertigstellung
- 03/2016
Aufgabe / Anlass
Die Leipziger Wohnungs- und Baugesellschaft LWB errichtete den Neubau einer Kindertagesstätte für 30 Krippenkinder und 72 Kindergartenkinder als integrative Einrichtung am Standort Elsterstraße 2 auf einem vorhandenen, bislang als Teil einer Grünfläche genutzten Grundstück.
Städtebau
Geschützter Baumbestand, nicht überbaubare Fernwärme-Leitungstrassen und einzuhaltende Abstandsflächen zu benachbarten Grundstücken definieren das Baufeld im rückwärtigen Grundstücksteil. Die Kita wird in zweiter Reihe über eine mit eingetragener Baulast gesicherte Zufahrt erschlossen. Sie präsentiert sich als zweigeschossiger, kompakter Baukörper, der auf die Zufahrt mit einer einspringenden Gebäudeecke und einem Vorplatz reagiert. Zur Zentralstraße zeigt sich die Kita mit einer vorgelagerten großzügigen Freispielfläche unter Einbeziehung des Baumbestands. Die vom Straßenraum abgerückte Einbettung des Solitärbaus inmitten der Grünflächen betont seine Stellung als Sonderbau.
Gebäudeentwurf
Die Gemeinschafts- und Krippenbereiche liegen im Erdgeschoss. Die Kindergartenbereiche sind im Obergeschoss untergebracht. Sämtliche Hauptaufenthaltsbereiche für Kinder orientieren sich nach Südosten zur Freispielfläche hin. Sie verfügen jeweils über direkte Zugänge zum Garten und eine überdeckte Vorzone.
Im Erdgeschoss liegt der Krippenbereich unmittelbar am Eingangsfoyer. Zwei Krippenräume teilen sich eine gemeinschaftliche Sanitärzone und verfügen über je einen abseitigen Schlafraum.
Das Foyer mündet in einen offenen Aufenthalts- und Speisebereich mit Kinderküche. Dieser Bereich kann mit dem benachbarten Mehrzweckraum mittels mobiler Trennwand zusammengeschaltet werden. Der Mehrzweckraum ist für Bewegungspädagogik bestimmt und wird entsprechend ausgestattet.
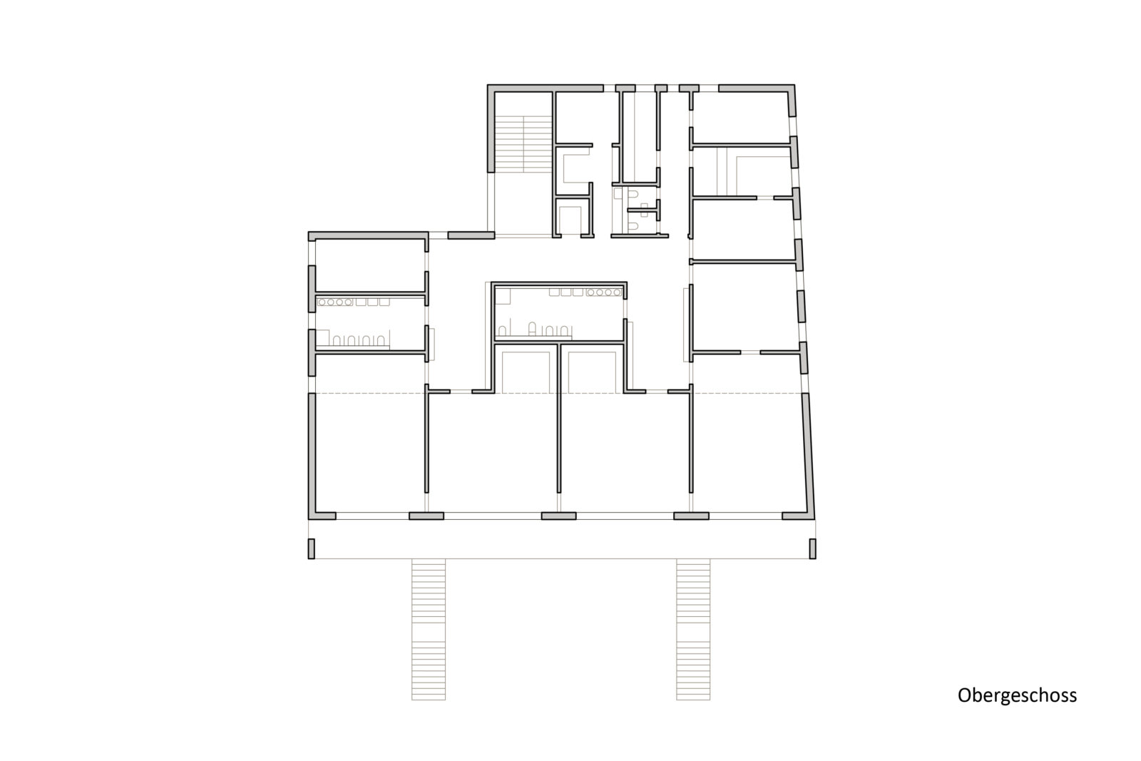
Im Obergeschoss erstrecken sich die vier Kindergartengruppen über die Südwestseite der Kita. Je zwei Gruppenräume teilen sich Sanitärraum und Garderobe. Direkte Verbindungen der Gruppenbereiche untereinander ermöglichen die offene Arbeit.
An den Garten sind die Gruppenbereiche über einen vorgelagerten Balkon mit Außentreppen angebunden. Diese haben in Ihrer Funktion als Flucht- und Rettungswege entscheidende Bedeutung für ein wirtschaftliches und funktionales Grundrisskonzept mit optimierten Flucht- und Rettungswegen.
Die Gruppenräume des Kindergartens verfügen über jeweils teilweise zusätzliche Raumhöhen und ermöglichen den Einbau einer 2. Ebene im Sinne einer Spielempore.