Neubau Gemeindehaus Hoffnungskirchgemeinde in Leipzig, Knauthain
Anerkennung Architekturpreis des BDA Sachsen 2018









Neubau Gemeindehaus Hoffnungskirchgemeinde in Leipzig, Knauthain
Wettbewerb – 1. Preis
Anerkennung Architekturpreis des BDA Sachsen 2018
- Bauherr
- Ev.-Luth. Kirchgemeinde Knauthain
- KG 200-700
- 0,82 Mio. €
- BGF
- 300 m²
- BRI
- 1.350 m²
- Leistung
- LP 01-09
- Fertigstellung
- 10/2017
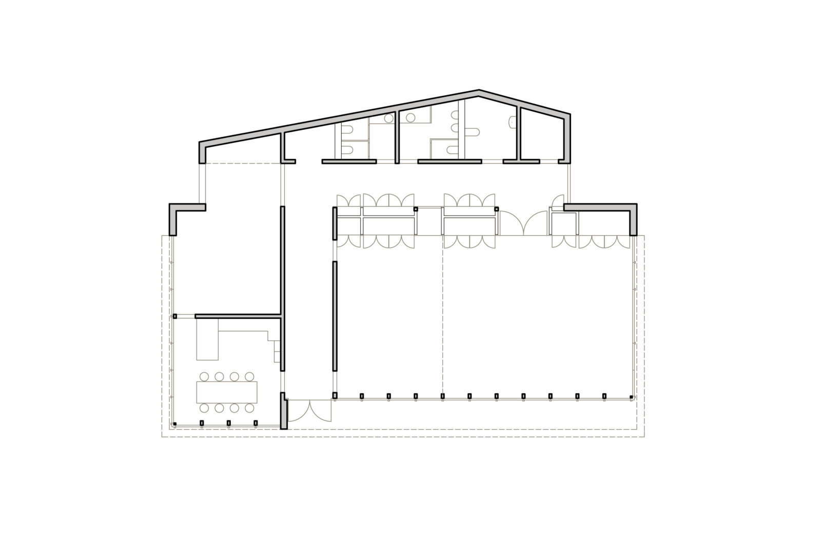
Städtebau
Der Neubau greift mit einem grenzständigen Gebäudeteil das ortstypische Prinzip der Grenzbebauung auf. Er gliedert sich in einen seitlich einspringenden, niedrigen Baukörper und einen überhöhten Gebäudeteil. Der überhöhte Gebäudeteil wirkt als freigestellter, selbstbewußter Baukörper wie ein weiterer eigenständiger Baustein im Ensemble, während der niedrige Gebäudeteil als Verbindungsbau zur Nachbarbebauung fungiert.
Dank der Kompaktheit und Anordnung des Baukörpers auf dem Grundstück kann der gesamte Baumbestand erhalten werden. Gleichzeitig leistet die Baukörperstellung eine natürliche Gliederung der Freiflächen in Gemeinde- und Kirchhof und lässt die gewünschten Blickbeziehungen auf dem Grundstück und vom Inneren des Gebäudes nach außen zu.
Gebäudeentwurf
Der Hauptzugang des Gebäudes erfolgt über den Gemeindehof mit Vorplatz. Der südliche Nebeneingang am Kirchhof bietet die kurze Wegeverbindung zur Kirche. Eine weitere Verbindung besteht über die Küche und die nördliche Terrasse zu einem Küchengarten.
Das Gebäude ist eingeschossig ohne Unterkellerung geplant. Eine interne Erschließungsachse befindet sich in dem grenzständigen, niedrigen Baukörper und wird von dienenden Funktionen wie Küche, WC-Bereiche, Technik und Garderoben flankiert. Der gartenseitige, überhöhte Baukörper beinhaltet den Gemeindesaal.
Dieser kann mit mobilen Trennwände in die gewünschte Kleinteiligkeit mit Jugendraum, Foyer und zwei Sälen unterteilt werden. Der Jugendraum wird dabei direkt vom Foyer aus über ein Türelement innerhalb der mobilen Trennwand erschlossen, während der teilbare Saal vom Gang aus erschlossen wird. Befinden sich sämtliche mobile Trennwandelemente in den Parktaschen, werden alle Gruppenräume zu einem Saal im Sinne einer höchstmöglichen Flexibilität zusammengefasst. Bei diesem Nutzungsszenario kann der Hauptzugang über die Stirnseiten erfolgen.
Während die drei Seiten des Saales sich über die raumhohe Verglasung öffnen und vielfältige Einblicke in den Gemeinde- und Kirchhof zulassen, ist die Rückwand des Saales als Stauraum konzipiert, welcher sowohl von der Saal- als auch von der Gangseite aus beschickt werden kann. Die Tiefe der Stauräume vom Saal aus ist auf die Unterbringung sämtlicher Möbel und des Backstage-Bereiches ausgelegt. Die Höhe der Wände ermöglicht weiteren Stauraum über den eingelagerten Möbeln.
Konstruktion
Der grenzseitige Gebäudeteil ist als Massivbau in konventioneller Bauweise geplant, während der flexible Gemeindesaal als ablesbarer Holzskelettbau, basierend auf einem Primärraster von 1,25 m, vorgesehen ist. Beide Gebäudeteile besitzen Flachdächer, welche optional (auch zu einem späteren Zeitpunkt) mit einem Gründach versehen werden können.
Fassade
Die Fassade wird entsprechend den umliegenden Gebäuden und des Kirchenbaues verputzt.
Die außenseitigen dunklen Holzflächen der Tragstruktur und Fensterrahmen kontrastieren zum hellen Kratzputz.
Sämtliche Öffnungsflügel sind mit weißen Rahmenfüllungen ausgeführt und zitieren die nachbarschaftliche Fachwerkstruktur des Pfarrhauses. Vor den festverglasten Flächen laufen außenliegende Sonnenschutzrollos, die gleichzeitig als Verdunklung der Räume dienen. Die Maschenweite ist dabei so gewählt, dass der Blick nach außen weiterhin erlebbar ist.